




十日市場店
大スタジオは最大150名収容可能!
3面鏡張りの国内でも最大級のスタジオになります。
更衣室が2部屋ございます。
中スタジオは最大50名収容可能!
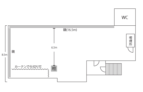
長方形の2面鏡張りのスタジオになります。
大人数のレッスンや振付、ダンスサークルから舞台稽古まで、ご相談頂ければ定期レンタルも可能です。
また、スタジオパフォーマンスや各種講習会、打ち上げ、パーティースペースなどにも使用できます。料金や使い方など、相談可能ですので是非一度ご連絡ください。




キャンセル・変更料金は
「11日前までは無料」
「4日前~10日前までは50%」
「3日前〜当日は100%」
すでにお支払い頂いている場合は該当する金額を返金致します。
まだの場合はキャンセル後1週間以内にお支払い頂きます。
2021年7月25日0時以降のお申込みから適応。
スタジオ内での食事は一切お断り致します。飲食を目的とするレンタルの場合は事前にご相談ください。
駐車場は当ビルに16台分の有料コインパーキングがございますが、一般開放されております。満車の場合は近隣のコインパーキングをご利用ください。
3日前以内のレンタルは直接メールでお問い合わせください。

![]()
Address



予約フォーム・オンライン予約
予約フォームよりご希望の日時を入力し、お申込みください。
受付メール受信(仮押え)
振込・精算
レンタル費用は前払い制となりますので、必ず期限内までにご入金お願いします。
予約完了メール
ご利用当日


下記のフォームに必要事項を入力のうえ、「次へ」をクリックしてください。